1. Prinzip
Das bei einem Verbrennungsmotor angewendete Verfahren der Benzineinspritzung ermöglicht es, die der angesaugten Luft entsprechende Kraftstoffmenge zuzuführen, um so die angestrebte gute Gemischverbrennung zu erzielen. Bei dem Verfahren der elektronischen Benzineinspritzung liefern die Sensoren Informationen an ein Steuergerät, das diese Informationen auswertet und die Einspritzung steuert.
Die Gesamtanlage besteht aus dem Kraftstoffsystem und der elektronischen Steuerung. Zum Kraftstoffsystem gehören:
- Elektrische Kraftstoffpumpe,
- Kraftstoffilter,
- Druckregler,
- Einspritzventil für jeden Zylinder,
- Kaltstartventil und ein Relais zum Einschalten der Kraftstoffpumpe.
Zur elektronischen Steuerung gehören :
- Elektronisches Steuergerät,
- Zündverteiler mit Auslösekontakten als Impulsgeber, -Saugrohrdruckfühler,
- Temperaturfühler ,
- Thermoschalter oder Thermozeitschalter,
- Zusatzluftschieber,
- Druckschalter ,
- Drosselklappenschalter und ein
- Relais zur Spannungsversorgung des Steuergerätes.
Bei der BOSCH-Anlage handelt es sich um eine elektronisch gesteuerte Benzineinspritzung. Saugrohrdruck und Motordrehzahl liefern die Informationen für das elektronische Steuergerät, die das Gerät in Impulse für den Öffnungszeitpunkt und die Öffnungsdauer der Einspritzventile umwandelt. Die dem Zylinder mit Hilfe von Einspritzventilen zuzuführende Kraftstoffmenge ist abhängig vom Einspritzdruck und der Zeitdauer der Einspritzung. Der Durchflussquerschnitt des Einspritzventils wird nicht verändert, der Einspritzdruck ist gleichbleibend. Das Prinzip besteht darin, dass die Öffnungsdauer der Einspritzventile durch ein elektronisches Steuergerät geregelt wird.

Im Kraftstoffsystem der Anlage saugt die Kraftstoffpumpe über einen Filter den Kraftstoff vom Kraftstoffbehälter an und drückt ihn durch das Verteilerrohr und dessen Abzweigungen zu den Einspritzventilen. Am Ende der Druckleitung sitzt der Druckregler, der den Druck auf etwa 2 Bar hält und von dem aus der zuviel geförderte Kraftstoff zum Kraftstoffbehälter zurückfließt. Somit stehen alle Einspritzventile unter einem konstanten Kraftstoffdruck von etwa 2 Bar.
Die Kraftstoffpumpe ist eine Rollenzellenpumpe, die von einem Elektromotor angetrieben wird. Sie hat Anschlüsse für die Saug- und Druckleitung und wird vom Steuergerät über ein Relais geschaltet.
Wird die Zündung eingeschaltet, läuft die Pumpe nur etwa eine Sekunde. Erst wenn der Motor gestartet wird, schaltet das Steuergerät die Pumpe wieder ein. Mit dieser Sicherheitsschaltung (Vollaufsicherung) wird verhindert, dass bei einem beschädigten Einspritzventil der betreffende Zylinder volläuft und dann beim Starten zerstört wird.
Die Förderleistung der Kraftstoffpumpe liegt wesentlich über der maximal benötigten Kraftstoffmenge; dadurch wird eine gute Durchspülung der Druckleitungen zur Vermeidung von Dampfblasenbildung erreicht.
Der Kraftstofffilter dient zur Reinigung des Kraftstoffes, um Schäden an den Einspritzventilen und am Druckregler zu verhindern. Beim Einbau ist auf die Durchflussrichtung zu achten.
Der einstellbare Druckregler sitzt in der Druckleitung hinter den Einspritzventilen und hat einen Zulauf- und einen Rücklaufanschluss. Die Einstellung des Druckreglers erfolgt durch die Vorspannung einer Schraubenfeder. Der Kraftstoffdruck, der bei der elektronisch gesteuerten Benzineinspritzung gleichzeitig Einspritzdruck ist, wird durch den Druckregler auf einen festgelegten Überdruck von etwa 2 Bar gehalten. Steigt der Druck über diesen festgelegten Wert, öffnet im Druckregler das federbelastete Membranventil und gibt den Rücklauf zum Kraftstoffbehälter frei.
Das Startventil ist am Sammelsaugrohr angebaut und spritzt während des Startens bei niedrigen Temperaturen zusätzlich Kraftstoff ein, damit der Motor besser anspringt. Durch einen Stromimpuls wird das Ventil geöffnet und der Kraftstoff durch eine Dralldüse fein zerstäubt eingespritzt.
Jedem Zylinder des Motors ist ein Einspritzventil zugeordnet, das je Arbeitsspiel des Motors einmal elektromagnetisch betätigt wird und dabei Kraftstoff einspritzt.
Die Düsennadel besitzt am Düsenende einen Dichtkegel und einen Zerstäuberzapfen, der eine feine Zerstäubung des Kraftstoffes bewirkt. Im Kraftstoffzulauf des Ventils ist noch ein Filter eingebaut. Geräuschdämpfung und Abdichtung der Einspritzventile erfolgen durch eine Lagerung in Gummi. Außerdem müssen sie gegen hohe Temperaturen isoliert sein.
Die vom Steuergerät kommenden Stromimpulse bauen ein Magnetfeld auf. Dadurch wird der Anker angezogen und hebt die Düsennadel von ihrem Sitz ab; dabei wird der Weg für den unter Druck stehenden Kraftstoff frei. Die Ansprechzeit beträgt etwa 0,001 s der Ankerhub etwa 0,15 mm und die Öffnungsdauer der Einspritzventile je nach erforderlicher Kraftstoffmenge 0,002 s bis 0,01 s.
Um den Aufwand an elektronischen Bauteilen möglichst gering zu halten, werden die Einspritzventile beim Sechszylindermotor in 2 Gruppen zu je 3 Ventilen vom elektronischen Steuergerät geregelt. Dabei gehören die Ventile zu einer Gruppe von drei in der Zündfolge hintereinander liegenden Zylindern. Nur 2 Zylinder erhalten also im Ansaughub den Kraftstoff. Bei den anderen Zylindern wird der Kraftstoff vorgelagert und beim nächsten Ansaughub in den Zylinder gesaugt .
Die Steuerung des Einspritzzeitpunktes erfolgt durch einen auf der Verteilerwelle sitzenden Nocken, der wechselweise zwei Auslesekontakte steuert. Diese (nicht verstellbaren) Auslesekontakte befinden sich im Gehäuseunterteil des Zündverteilers und sind um 180° versetzt angeordnet. Durch die Impulse der Auslesekontakte und die Motordrehzahl erhält das Steuergerät Informationen über den Einspritzzeitpunkt. Das Diagramm zeigt die zeitliche Folge für das Öffnen des Einlassventils, den Einspritzbeginn und den Zündzeitpunkt des Sechszylindermotors.
Die jeweilige Einspritzmenge wird durch die Öffnungsdauer der Einspritzventile bestimmt. Als Hauptinformationen für die elektronische Steuerung werden Saugrohrdruck und Motordrehzahl verwendet; auch weitere Daten wie Motortemperatur und Außentemperatur sind für den Betriebszustand maßgebend. Alle Informationen zur Bemessung der Kraftstoffmenge werden in das Steuergerät eingegeben und in elektrische Impulse von kürzerer oder längerer Dauer gewandelt. Die Dauer dieser Impulse bestimmt die Öffnungsdauer der Einspritzventile und damit die Einspritzmenge.
Im Saugrohr herrscht vor der Drosselklappe der atmosphärische Druck (Außendruck), hinter der Drosselklappe ein Unterdruck, der sich je nach Stellung der Drosselklappe laufend verändert.
Der Druckfühler ist mit dem Sammelsaugrohr verbunden und übermittelt den Unterdruck als wichtigste Messgröße für die Motorbelastung dem Steuergerät.
Im Druckfühler befinden sich zwei Barometerdosen, die durch ihre Volumenänderung, bedingt durch den Unterdruck, einen Anker im Eisenkreis verschieben: Dadurch wird die Induktivität geändert. Diese Änderung wird als Information einem elektronischen Zeitschalter im Steuergerät vermittelt. Den Beginn der Einspritzung bewirken die Auslesekontakte im Zündverteiler. Das Ende der Einspritzung und damit die Einspritzmenge, bestimmt der Druckfühler über den elektronischen Zeitschalter im Steuergerät. Da der Druckfühler den absoluten Druck im Saugrohr misst, werden alle Einflüsse auf den Druck, wie z. B. Wetterlage, Höhenlage, Luftfilterzustand, berücksichtigt.
Für ein einwandfreies Betriebsverhalten des Motors werden außer Saugrohrdruck und Motordrehzahl noch weitere Korrekturgrößen dem Steuergerät eingegeben: Kaltstartanreicherung, Warmlaufanreicherung, Volllastanreicherung, Beschleunigungs- bzw. Übergangsanreicherung. Deswegen sind bei der Einspritzanlage weitere Geräte erforderlich.
Beim Starten des kalten Motors wird das Gemisch über ein Kaltstartventil angereichert. Das Kaltstartventil wird von einem Thermozeitschalter gesteuert und nicht vom Steuergerät.
Beim Warmlaufen des Motors wird durch die Warmlaufanreicherung mittels eines Zusatzluftschiebers mehr Luft und über das Steuergerät mehr Kraftstoff zugegeben. Bei steigender Motortemperatur schließt der Zusatzluftschieber und die Einspritzmenge wird verringert. Bei etwa 70°C ist der Zusatzluftschieber ganz geschlossen.
Bei Volllast muss das Kraftstoff-Luftgemisch angereichert werden. Das Steuergerät erhält dazu die Impulse vom Druckschalter.
Die Beschleunigungsanreicherung (Übergang) wird durch eine Zusatzeinrichtung im Drosselklappenschalter gesteuert, die Impulse an das Steuergerät gibt. Beim Gaswegnehmen schaltet die Zusatzeinrichtung ab.
1.2 Verbrennungsgemisch
Bei dem angewandten System (indirekte Einspritzung) wird das Benzin in die Ansaugleitung gespritzt, und zwar vor das Einlassventil an jedem Zylinder.
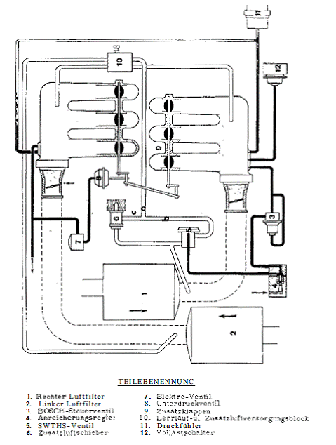
a) Luftsystem
Die 6 Zylinder werden durch 6 Ansaugrohre, die in zwei Ansaugkrümmer münden, gespeist. Die Form der Ansaugrohre ist derart, dass der Weg der angesaugten Luft für jeden Zylinder gleich ist. Der Haupteinlass des Luftstromes wird durch die Öffnung einer Drosselklappe je Zylinderreihe betätigt, die vor dem Krümmereingang sitzt (Drosselklappengehäuse). Es werden drei zusätzliche Luftsysteme verwendet, eines für normalen Leerlauf, das andere für zusätzliche Luftzufuhr (Kaltstart und Abgasentgiftung). Ein Druckfühler und ein Druckschalter sind mit dem Ansaugkrümmer verbunden. Wir werden noch im Einzelnen sehen, wie der Druckfühler und der Druckschalter den im Ansaugkrümmer herrschenden Unterdruck erfassen.

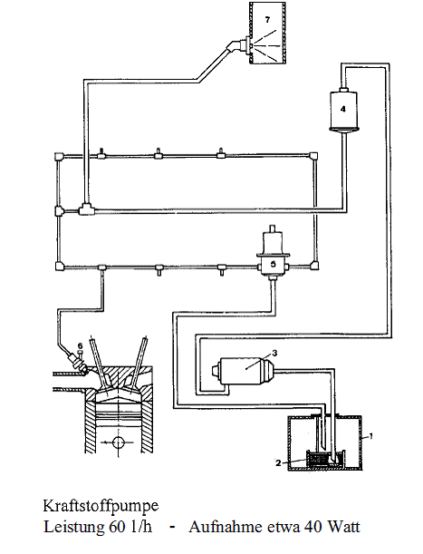
b) Kraftstoff- Kreislauf
Der durch eine Elektropumpe (3) vorn Kraftstoff tank (1) angesaugte Kraftstoff läuft durch einen Vorfilter (2) und wird dann durch die Pumpe über den Feinfilter (4) zu der Ringleitung befördert, welche die Einspritzventile (6) und Kaltstartventil (7) versorgt.
- Der Kraftstoffdruck wird durch einen Druckregler auf ca. 2 Bar eingestellt. Der Kraftstoffüberschuss fließt direkt über die Rücklaufleitung zum Behälter zurück.
- Die eingespritzte Kraftstoffmenge hängt von der Einspritzzeit ab. Die Öffnungsdauer der Einspritzventile wird durch das elektronische Steuergerät analog ermittelt und nicht errechnet.

Beschreibung der Funktionsweise:
Elektrische Pumpe mit Rollen; sie besitzt einen Eingang (vom Kraftstofftank her) und einen Ausgang. Das Pumpensystem besitzt eine zylindrische Kammer, in der sich eine aus der Mitte versetzte Scheibe dreht. Die Scheibe hat am Rand 5 taschenförmige Aussparungen, in denen sich jeweils eine Rolle befindet. Unter Einwirkung der Fliehkraft werden die Rollen gegen die Wand der zylindrischen Kammer gepresst.
Der Ansaugeffekt erfolgt durch Erhöhung des durch die Rollen begrenzten Kammervolumens zwischen innerer Scheibe und äußerer Wand. Die Weiterleitung erfolgt durch Verringerung des Volumens dieser gleichen Kammern. Wenn der Regler für den Kraftstoffdruck nicht mehr funktioniert und der Kraftstoffdruck etwa 4 Bar erreicht, hebt sich ein Ventil an und der Kraftstoff läuft in den Pumpenkörper zurück.
Ansteuerung der Pumpe
Die Pumpe wird über ein Relais betätigt, das sich schließt, wenn
- der Fahrer die Zündung einschaltet. Das Relais schließt sich für eine Sekunde; die Pumpe läuft eine Sekunde. Hat der Fahrer nach Ablauf dieser Zeit den Anlasser nicht betätigt, so öffnet sich das Relais, und die Pumpe fordert nicht mehr. Betätigt der Fahrer den Anlasser nach Ablauf dieser Zeit, so beginnt die Pumpe zu arbeiten.
- Liegt die Motordrehzahl unter 100'/min (nicht betätigter Anlasser), hört die Pumpe zu arbeiten auf.

Der Druckregler
Der Druckregler besteht im Wesentlichen aus einer federbelasteten Membrane, die ein Ventil betätigt. Wenn der Kraftstoffdruck ausreicht, die Membrane anzuheben und das Ventil zu öffnen (Druck der Feder), fließt der überschüssige Kraftstoff durch die Rücklaufleitung zum Tank zurück.

Das Einspritzventil
Das Einspritzventil besitzt eine mit einem Magnetanker verbundene Nadel. In Ruhestellung drückt eine Druckfeder die Nadel in ihren Sitz. Das Gesamtteil sitzt in einem Einspritzventilkörper, in den eine Magnetwicklung eingebaut ist. Wenn die Wicklung erregt wird, zieht diese den Magnetanker zurück, wodurch die Nadel aus ihrem Sitz angehoben wird und die Einspritzung erfolgt. Die Form der Nadel ist so gestaltet

1.3 Dosierung des Verbrennungsgemisches
a) Prinzip
Die theoretische Dosierung, die sich aus den Verbrennungsgesetzen ableitet, beträgt 1g Benzin auf 15g Luft. Diese Dosierung ist nicht zufrieden stellend, da sie weder eine maximale Leistung noch einen sparsamen Verbrauch gewährleistet. Aus diesem Grunde sind zwei vollkommen verschiedene Dosierungen anzustreben:
- eine magere Dosierung (1/18) für normale Beanspruchung (Teillast)
- eine fette Dosierung (1/12,5), wenn der Wagen voll ausgefahren wird (Volllast)
- eine noch fettere (1/3), wenn der Motor kalt ist und gestartet wird (unter 25 Grad).
b) Praktische Anwendung
Die eingespritzte Kraftstoffmenge muss, der angesaugten Luftmenge entsprechend, der gewünschten Dosierung angepasst werden. Da die Luftmenge nicht direkt im Zylinder gemessen werden kann, wird der absolute Druck im Ansaugkrümmer gemessen. Außerdem wird ebenfalls die Motordrehzahl gemessen. Das Steuergerät nimmt diese Informationen auf, wertet sie aus und gibt einen elektrischen Impuls an das Einspritzventil. Die Dauer dieses Impulses bestimmt die einzuspritzende Kraftstoffmenge.
In der Praxis können die beiden Parameter (Druck und Drehzahl) keine genaue Anpassung für sämtliche Bedingungen der Motorfunktion geben. Hier müssen sowohl Temperaturunterschiede als auch Schwankungen in der Stromversorgung berücksichtigt werden (Spannung des Stromkreislaufes).
Anmerkung:
Durch die Messung des absoluten Luftdruckes wird vermieden, eine Höhenkorrektur vorzunehmen.
Wir erinnern daran, dass der Unterdruck im Verhältnis zum absoluten Druck der angesaugten Luft steht. Er ist niedriger als der atmosphärische Druck. Er ist am stärksten bei geschlossener und am schwächsten bei ganz geöffneter Drosselklappe. In diesem Falle liegt sein Wert in der Nähe des atmosphärischen Druckes.
2. Beschreibung der Teile
2.1 Elektronisches Steuergerät
Das elektronische Steuergerät gliedert sich in 4 wesentliche Funktionen:
- Abgabe von Grundimpulsen
- Korrektur der Dauer dieser Impulse
- Impulsgebung für die beiden Einspritzventilgruppe
- Verstärkung der an die Einspritzventile abzugebenden Impulse
a) Abgabe von Grundimpulsen
Diese Funktion löst einen Impuls aus, dessen Dauer von den Angaben des Druckfühlers und der Motordrehzahl abhängt.
b) Korrektur der Grundimpulse
Diese Funktion zentralisiert die Informationen in Bezug auf die Korrekturen von Temperatur und Stromspannung, die nachstehend noch erläutert werden, und wirkt dann auf die anfängliche Impulsdauer ein.
c) Impulsgebung
Dieses Teil erhält von dem Impuls-Auslöser, der sich im Zündverteiler befindet, das Signal, abwechselnd an jede Einspritzventilgruppe Impulse zu geben.
d) Verstärkung
Schließlich werden die vom Steuergerät ermittelten Impulse verstärkt, um eine für die Verschiebung der Einspritzventilnadel ausreichende Stromstärke zu erhalten.
Anmerkung bezüglich der Impulsgebung:
Um das Steuergerät zu vereinfachen, wurden die Einspritzventile in zwei Ventilgruppen mit jeweils 3 Einspritzventilen aufgeteilt. Erhält also eine Ventilgruppe einen Impuls, so wird einer der Zylinder während der Ansaugzeit, d.h. bei geöffnetem Einlassventil, gespeist und der andere Zylinder während der Auspuffzeit, d.h., bei noch geschlossenem Einlassventil (Kraftstoffvorlagerung). Versuche haben ergeben, dass sich dieses System in der Praxis als zweckmäßig erwiesen hat.
2.2. Die Informationsgeber (Sensoren)
Jede, von diesen Sensoren ausgehende Information läuft über einen Wandler, der sie in eine für das Steuergerät verständliche Form umsetzt.
a) Druckfühler
Der Druckfühler wandelt die Werte des Ansaugdruckes mit Hilfe eines beweglichen metallischen Kernes, einem sog. Anker, in elektrische Werte um. Die Informationen, die er an das Steuergerät schickt, werden zu einem Kommando verarbeitet, welches die Öffnungsdauer der Einspritzventile bestimmt. Ein spezieller Anker wird durch zwei Barometergehäuse betätigt, mit denen er verbunden ist. Indem der Anker mehr oder weniger in ein Magnetfeld eintritt, bestimmt er auf diese Weise die verschiedenen Werte der "Erregung" der Haupt- und Nebenwicklung. Dieser bewegliche Anker wird ohne Reibung von zwei Blattfedern geführt.
b)
Auslösekontakt
Dieser befindet sich im Zündverteiler. Er bestimmt den Einspritzbeginn und misst die Motordrehzahl. Er setzt sich aus 2 auf 180° angeordneten Kontaktschaltern zusammen, die durch einen zusätzlichen Nocken der Verteilerwelle betätigt werden.
c)
Temperaturfühler
Der Temperaturfühler ist ein Widerstand, dessen Wert sich in Abhängigkeit von der Temperatur ändert. Das Steuergerät misst den Widerstand und schickt diese Messung zur Korrekturvorrichtung des Steuergerätes.
Beispiel: Ein Wassertemperaturabfall von 50° auf 30° bewirkt eine Erhöhung der Impulsdauer um das 2,5 fache.
d)
Spannungskorrektur
Die Korrektur der Spannung erfolgt direkt im Steuergerät, welches die Arbeitsspannung aufgrund der ihm zugeleiteten Spannung korrigiert. Diese Korrektur ist notwendig, da Spannungsschwankungen unterschiedliche Öffnungszeiten des Einspritzventils verursachen können, da sich dieses nicht mit der gleichen Geschwindigkeit öffnet. Je nachdem, ob die Spannung hoch oder niedrig ist.

3. Spezielle Funktionen
3.1. Leerlauf
Wenn der Motor im Leerlauf läuft, ist ein geringer Widerstand zu überwinden, mit Ausnahme der inneren Reibung. Die zu liefernde Energie ist gering; die Drosselklappen sind geschlossen. Der Unterdruck im Ansaugkrümmer ist sehr hoch und die Impulsdauer minimal. Jedoch sind die Bedürfnisse des Motors den Temperaturbedingungen entsprechend unterschiedlich. Ein kalter Motor hat höhere innere Widerstände.
a) Luftsystem
Da bei Leerlauf die Drosselklappen die Luftzufuhr absperren, muß auch dann noch eine ausreichende Luftzufuhr erfolgen, damit der Motor läuft. Diese Luftzufuhr erfolgt durch 3 Luftleitungen.
- Eine normale Leerlauf-Luftleitung ist im Luftzufuhrblock eingebaut. Die Luftmenge wird mit einer Stellschraube von Hand bei betriebswarmen Motor eingestellt. Ein Zusatzluftschieber öffnet bei kaltem Motor eine zusätzliche Luftleitung. Ein Temperaturanstieg vermindert die Luftzufuhr.
- Ein Zusatzluftsystem bei Verzögerung des Mo tors, genannt DECEL. Um den Abgasbestim mungen zu genügen, wird eine zusätzliche Luftmenge zugeführt, wenn ein bestimmter Unterdruck im Ansaugrohr ansteht.
b) Angleichung der Kraftstoffmenge
Im Leerlauf ist der Unterdruck im Ansaugkrümmer sehr hoch, und die für niedrigsten Druck geltende Einspritzdauer eignet sich nicht für Leerlauf, da der abgegebene Impuls zu lang ist (Gemisch zu fett). Der Drosselklappenschalter (rechts angebaut), der durch ein elektrisches Signal direkt auf die Steuerung einwirkt, die den Grundimpuls abgibt, verringert die Impulsdauer. Unabhängig von dieser Korrektur bleiben die Temperatur- und Spannungskorrekturen bestehen.
3.2. Beschleunigung
a)
Allgemeines
Sobald der Fahrer die Drosselklappe abrupt öffnet, fällt der Unterdruck und der Kraftstoffbedarf steigt sehr schnell. Dieser Kraftstoffbedarf ist um so höher, je mehr die geforderte Leistung an die Maximalleistung heranreicht. Theoretisch gleicht das Steuergerät sofort die Einspritzdauer dem jeweiligen Kraftstoffbedarf an. Die Ansprechzeit der Kombination Steuergerät und Informationsgeber liegt jedoch bei 150 Millisekunden. Diese Zeitspanne ist zu groß. Außerdem wird bei der Messung des Druckes nicht die Schnelligkeit berücksichtigt, mit welcher die Drosselklappe geöffnet wird. Aus diesem Grunde muss das Fahrzeug, mit einer der Beschleunigerpumpe am Vergaser ähnlichen Vorrichtung, ausgerüstet sein. Diese Funktion übernimmt der rechte Drosselklappenschalter, der auf das Steuergerät einwirkt.
b)
Funktion des Beschleunigungsvorganges
Die Abstellung der obengenannten Mängel bei der Beschleunigung erfolgt auf folgende Art:
Um die durch das Steuergerät verursachte Verzögerung zu vermeiden, genügt es zusätzliche Impulse zu senden, die unabhängig von den vorherigen Impulsen gegeben werden. Es gibt maximal 10 zusätzliche Impulse. Diese Impulse von jeweils 2,5 Millisekunden erhöhen die Öffnungszeit der Einspritzventile, unabhängig von jeglicher Korrektur. Die Impulse werden direkt von dem rechten Drosselklappenschalter zum Steuergerät gesandt.
Bei plötzlichem Öffnen der Drosselklappe hört die Wirkung der zusätzlichen Impulse sofort auf, wobei sich jedoch die Änderung des Druckes noch nicht merklich auf die Impulsdauer auswirkt. Um ein Loch zu vermeiden, registriert das Steuergerät die Auslösegesehwindigkeit der zusätzlichen Impulse (mindestens drei) und korrigiert dementsprechend die Einspritzdauer. Diese Korrektur wird verzögert und hört auf, wenn der Druck im Ansaugrohr auf die Einspritzzeit zu wirken beginnt. Selbstverständlich werden die zusätzlichen Impulse gestoppt, sobald man den Fuß vom Gaspedal nimmt.
3.3. Motorbremse
Eine Schubabschaltung ist beim SM nicht realisiert
3.4. Beschreibung des Drosselklappenschalters auf der rechten Fahrzeugseite
a) Beschreibung
Der Drosselklappenschalter ist ein schwarzer Kasten, der an das Drosselklappengehäuse angebaut ist und eine elektrische Leitung besitzt. Eine mit der Drosselklappe verbundene Welle ist mit einem Stromabnehmer versehen. Zwei in der Mitte der Welle konzentrisch liegende Kontaktstücke sind an die Klemmen 20 und 9 angeschlossen. Der Stromabnehmer der Nadel kann die Klemme 14 mit den Klemmen 20 oder 9 in Kontakt bringen, je nachdem, an welchem Sektor der Stromabnehmer Kontakt hat. Dieser Kontakt ist jedoch nur in einer Drehrichtung (Beschleunigen) möglich, da sich ein Schalter IR öffnet, sobald sich die Drosselklappe schließt.
Wenn andererseits die Drosselklappe geschlossen ist, schließt sich der Schalter IR, wobei er die Klemmen 17 und 14 in Kontakt bringt. IA öffnet sich, sobald die Drosselklappe um 1° geöffnet ist.

b) Vom Steuergerät abhängige Funktionen Funktion der Beschleunigung:
Die Klemmen 20 und 9 werden wechselweise mit Hilfe des Zeigers (I A geschlossen) und der Klemme 14 an die Masse angeschlossen. Dies ruft Impulse hervor, die an das Steuergerät geschickt werden, das wiederum Impulse konstanter Dauer, jedoch unterschiedlicher Frequenz, erzeugt. Diese Impulse werden an zwei Stellen gesandt:
- an die Funktion der Impulsgeber, wo sie verstärkt werden und so zusätzliche Impulse bilden
- an einen Schaltkreis, welcher den Grundimpuls korrigiert
Funktion Leerlauf:
Ist IA geschlossen, so wird Klemme 17 an die Masse angeschlossen und der Drosselklappenschalter arbeitet noch auf folgende Art, nämlich: Um die Grundimpulsdauer zu vermindern; es ist dies die Leerlauffunktion.

3.5. Volllast
a) Dosierung für Volllast
Bei großer Öffnung der Drosselklappe, d.h. für niedrigen Unterdruck, wird eine maximale Leistung gefordert. Dagegen sind Kraftstoffverbrauch und Abgasentwicklung unwesentlich (zumindest 1972). Wir müssen von einer sparsamen Dosierung auf Vollast-Dosierung übergehen. Hierzu wird ein Gerät benötigt, das dem Steuergerät ermöglicht, diesen Sprung auf einfache Art und Weise zu vollziehen. Dies ist die Rolle des Vollast-Schalters.
b) Funktion des Vollast-Schalters
Sobald der Druck nicht mehr als 0,053 Bar vom atmosphärischen Druck abweicht, schließt sich ein Kontakt und sendet eine Information an das Steuergerät, welches die Einspritzdauer wie oben angegeben ändert. Um zu vermeiden, dass die Einspritzdauer große Wertunterschiede aufweist, wenn der Druck um den Wert des Schaltkontaktes schwankt, was sich durch unangenehmes Rucken bemerkbar machen würde, wird die Unterbrechung dieses Kontaktes auf der Druckskala verzögert.
c) Beschreibung des Vollast-Schalters
Dies ist im wesentlichen eine Membrane, welche einerseits dem im Ansaugkrümmer herrschenden Druck und zum anderen dem atmosphärischen Druck ausgesetzt ist. Diese Membrane betätigt eine gebogene Lamelle und lässt diese abrupt die Position ändern. Dadurch schließt sie ihren Kontakt. Dieser Kontakt befindet sich in einem schwarzen Bakelit-Gehäuse, welches an der Kapsel befestigt ist, die die Membrane enthält. Die Einfassung dieses Gehäuses ist nicht dicht, wodurch der atmosphärische Druck auf die Membrane einwirkt. Sobald der Druck im Ansaugkrümmer abfallt, ändert die gebogene Lamelle die Position nur bei einem Druck, der niedriger ist als der Einschaltdruck. Der Kontakt schließt sich bei einem Druckunterschied beiderseits der Membrane von 0,053 + 0,013 Bar. Er öffnet sich, sobald der Druckunterschied höher ist als 0,088 + 0,020 Bar.
Anmerkung: Der Vollast-Schalter wird bei einem dem atmosphärischen Druck entsprechenden, variablen Druck ausgelöst. Auf diese Weise erübrigt sich jegliche Höhenkorrektur.
3.6. Kaltstart
Ist der Motor kalt, wird beim Anfahren ein fetteres Gemisch benötigt. Diese Gemischanreicherung erfolgt durch ein Kaltstartventil, welches den Kraftstoff in den Ansaugkrümmer leitet.

Dirk Müller
|